Quadrilocale in vendita

Reggio Di Calabria, Via Borgo Larizza - Reggio Calabria Centro
€ 90.000
4 locali 4 locali
160 Mq 160 Mq
2 bagni 2 bagni

Quadrilocale in vendita

Reggio Di Calabria, Via Borgo Larizza - Reggio Calabria Centro

Descrizione annuncio

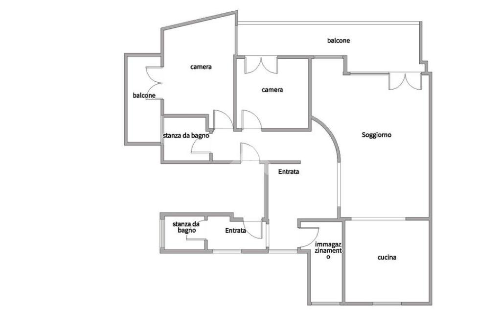
Via Borgo Larizza. LUMINOSO – PANORAMICO – DA RISTRUTTURARE
Proponiamo in vendita appartamento da ristrutturare posto al quinto piano senza ascensore, soluzione ideale per chi desidera ampie metrature, luce naturale e affacci aperti, con la possibilità di personalizzare ogni ambiente secondo il proprio stile.

L’immobile si distingue per la grande luminosità, garantita dal piano alto e dalla presenza di balconi panoramici, e per una distribuzione interna funzionale, facilmente valorizzabile in fase di ristrutturazione.

L’ingresso conduce ai vari ambienti tramite comodi disimpegni. La zona giorno è composta da una ampia cucina soggiorno con camino, spazio accogliente e versatile, perfetto per la vita quotidiana e per momenti conviviali. Dal soggiorno si accede al balcone panoramico, che dona respiro, luce e una piacevole continuità con l’esterno.

La zona notte comprende due camere da letto di generose dimensioni, entrambe luminose e con accesso al balcone panoramico. Completano la soluzione doppi servizi entrambi finestrati, elemento di grande valore, oltre ad un pratico ripostiglio.

La presenza del doppio ingresso rappresenta un plus importante, offrendo flessibilità nella gestione degli spazi e diverse possibilità di organizzazione interna.

La collocazione al quinto piano garantisce privacy, silenzio e vista aperta, caratteristiche sempre più richieste da chi cerca una casa ariosa e tranquilla.

Soluzione ideale per chi è alla ricerca di una prima casa da personalizzare, per famiglie che necessitano di spazi comodi o per chi desidera un investimento immobiliare con ottime potenzialità di valorizzazione.

Contattaci per maggiori informazioni o per fissare una visita.
Un appartamento da reinventare, pronto a diventare la casa che stai cercando.

Mostra tutto

Nelle vicinanze

Trasporto pubblico Trasporto pubblico
Reggio di Calabria Lido
Reggio di Calabria Lido
1,0 Km
Reggio di Calabria Centrale
Reggio di Calabria Centrale
2,0 Km
Via Reggio Campi, 110 (s/n)
Via Reggio Campi, 110 (s/n)
60 m
Via Reggio Campi, 110 (n/s)
Via Reggio Campi, 110 (n/s)
60 m
Metromare
1,7 Km
Ricariche auto elettriche Ricariche auto elettriche
Reggio Quartiere Militare | EnelX
960 m
Reggio Gelsomino | EnelX
980 m
Reggio Calabria Fata Morgana | EnelX
1,0 Km
Reggio Calabria Monumento ai Caduti | EnelX
1,3 Km
Reggio di Calabria Correttori | EnelX
1,5 Km
Scuole Scuole
Istituto di istruzione superiore "Augusto Righi"
580 m
Scuola Elementare Giovanni Pascoli
630 m
Scuola secondaria di primo grado "Diego Vitrioli"
650 m
Liceo Scientifico "Leonardo da Vinci"
700 m
Conservatorio Francesco Cilea
730 m
Farmacia Farmacia
Faramacia Spirito Santo
540 m
Farmacia Scerra Domenica
790 m
Farmacia Fata Morgana
1,1 Km
Farmacia Centrale
1,4 Km
Farmacia Arcudi
1,5 Km
Ospedali Ospedali
Ospedali Riuniti "Bianchi Melacrino Morelli"
540 m
Policlinico Madonna della consolazione
830 m
Istituto Ortopedico del Mezzogiorno d'Italia
1,3 Km
Ospedali
1,6 Km
Ospedale "Morelli"
1,7 Km
Supermercati Supermercati
Spaccio Alimentare
1,7 Km
Qui Conviene
1,8 Km
Supermercato Pam
2,1 Km
Supermercato MD
2,3 Km
Ipercoop
2,6 Km
Negozi Negozi
Clichè
840 m
Negozi
1,1 Km
OVS
1,2 Km
Upim
1,3 Km
Milasi
1,6 Km
Bar Bar
B'art Cafè
1,1 Km
Bar De Stefano
1,5 Km
Caridi
1,7 Km
Les FoliesCafè
1,9 Km
Bar Garibaldi
1,9 Km
Ristoranti Ristoranti
Pizzeria Ciroma
720 m
Pizza Roma
920 m
Sushi
970 m
Shangai Wok
1,1 Km
Pizzeria Fratelli La Bufala
1,1 Km
Mostra tutto

Caratteristiche

Rif.:
61174691
Piano:
5 di 5 (ultimo Piano)
Balconi:
2
Camere da letto:
2
Arredamento:
Assente
Condizionamento:
Autonomo
Mostra tutto
Prezzo Prezzo
€ 90.000
Rata mutuo Rata mutuo
€ 427 / mese
Spese annue Spese annue
€ 0
Proponi il tuo prezzoProponi il tuo prezzo

Classe Energetica

G
G
G
G
G
G
G
G
G
EP globale non rinnovabile:
123.40 kW h/m² anno
EP globale rinnovabile:
123.40 kW h/m² anno
Anno di costruzione:
1968
Riscaldamento:
Autonomo
Tipo impianto:
Ad aria
Tipo alimentazione:
Aria

Ti interessa visionare l'immobile?

Fissa un appuntamento  Fissa un appuntamento

Richiedi informazioni

Clicca su Leggi per aprire l'informativa
* Questi campi sono obbligatori

Calcola il tuo mutuo

Semplice e senza impegno
Anticipo

( % )
Mutuo

( % )

pochi semplici passi

inserisci i tuoi dati
Questionario completato
Grazie per aver richiesto un appuntamento senza impegno con un nostro Consulente del Credito e Assicurativo.

Hai inserito correttamente tutti i dati necessari e a breve riceverai una e-mail con un link da convalidare per inviare i tuoi dati.
Affiliato
Studio Reggio Calabria Centro Srl
Via Aschenez, 68 89125 Reggio Di Calabria (RC)
Via Aschenez, 68 89125 Reggio Di Calabria (RC)
Zona: Reggio Calabria - Centro
Mostra su mappa
Orari: dal Lunedì al Venerdì 8.30-13.00 / 15.00-19.00; Sabato 8.30 - 13.00.
Affiliato
Studio Reggio Calabria Centro Srl
Via Aschenez, 68 89125 Reggio Di Calabria (RC)

2026 Tecnocasa Franchising S.p.A. - P. IVA 08365160152 - Via Monte Bianco 60/A 20089 Rozzano (MI). Ogni agenzia ha un proprio titolare ed è autonoma. Privacy policy | Policy utilizzo | Cookie policy